genaue Zeit - Aktueller Kalender | ♫ ♫ ► RADIO ONLINE ♫ ♫ |
Hotline +49 1234 5678
Banner 3 Banner 1 Banner 2

City Center: Zwei Wohnungen zu vermieten

12.01.2021 16:02
(Kommentare: 0)
- Anzeige -

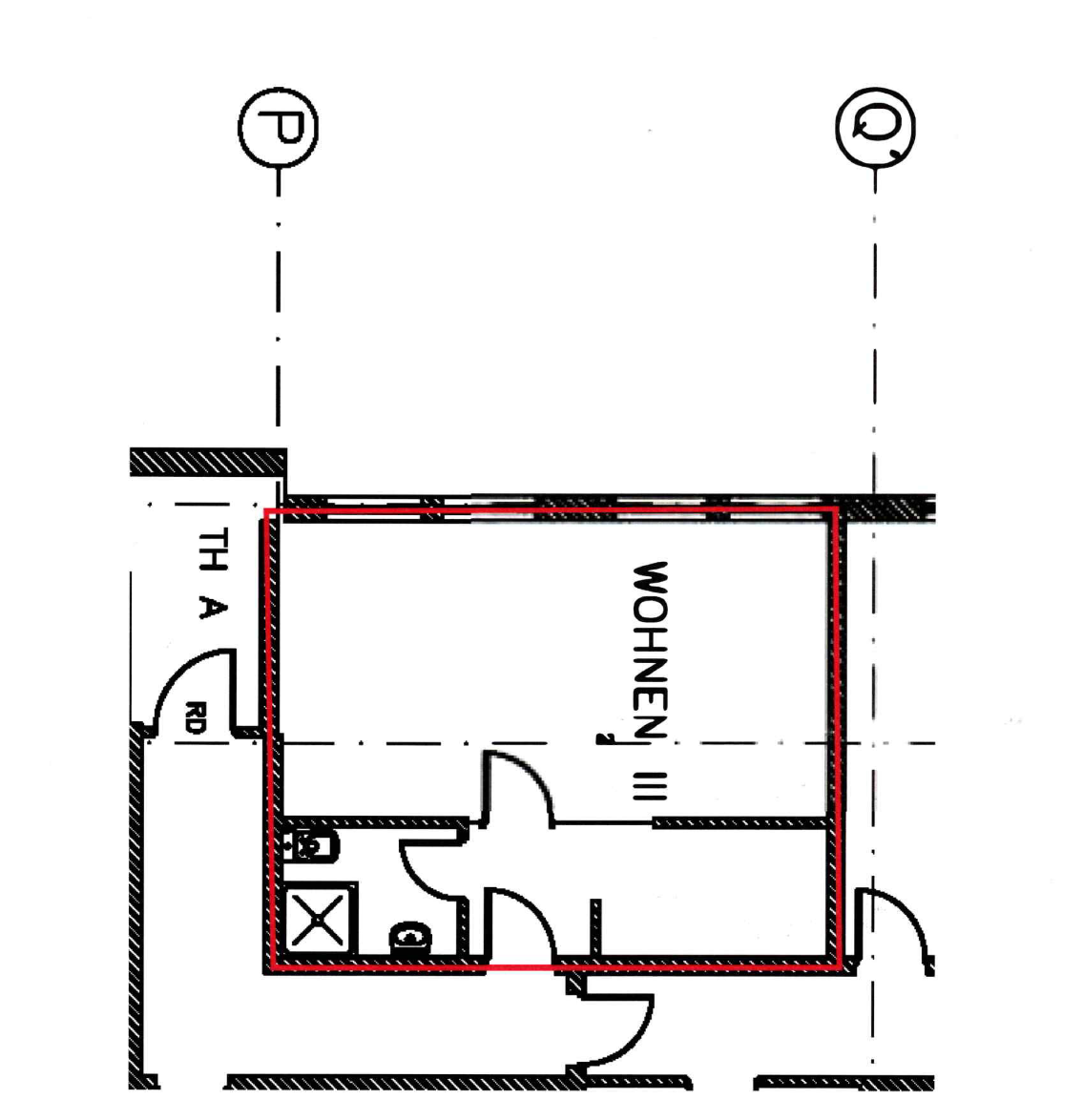
Wohnung 72 qm; 2,5 Zimmer

Kaltmiete: 396,00 €

Nebenkostenvorauszahlung:       82,80 €

Heizkostenvorauszahlung:            97,20 €

Verfügbar ab 03.02.2021

Bei Interesse setzen Sie sich einfach direkt mit uns in Verbindung.

Telefon: +49 3385 516115

E-Mail: annett.giese@gallus-services.de

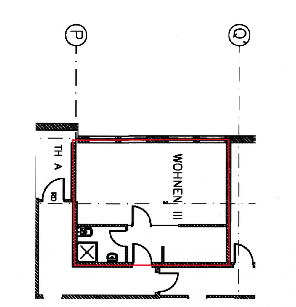
Wohnung 35 qm, 1 Zimmer

Kaltmiete:           192,50

Nebenkostenvorauszahlung:       45,50 €

Heizkostenvorauszahlung:            42,00 €

Verfügbar ab 01.04.2021

Bei Interesse setzen Sie sich einfach direkt mit uns in Verbindung.

Telefon: +49 3385 516115

E-Mail: annett.giese@gallus-services.de

Zurück

Einen Kommentar schreiben
© All rights reserved
German English